Wohnkultur erleben
Idee, Architektur, Ausstattung und Bauqualität
Zwei Stadthäuser – ein Projekt
Zentral, zukunftsgerecht und überaus lebenswert
Lebens- und Wohnsituationen rund um einen zentralen Ort organisiert, so lässt sich die Architektur des LINDEN FORUMS am besten beschreiben. Im Mittelpunkt steht immer die Schaffung eines „öffentlichen Raumes“ für gesellschaftliche Anlässe - wie zum Beispiel der Wohn-Essbereich mit offener Küche in eigentlich jeder Wohnung – jedoch klar abgetrennt von einem oder mehreren privaten Rückzugsbereichen.
Das Bauvorhaben im Kurzprofil
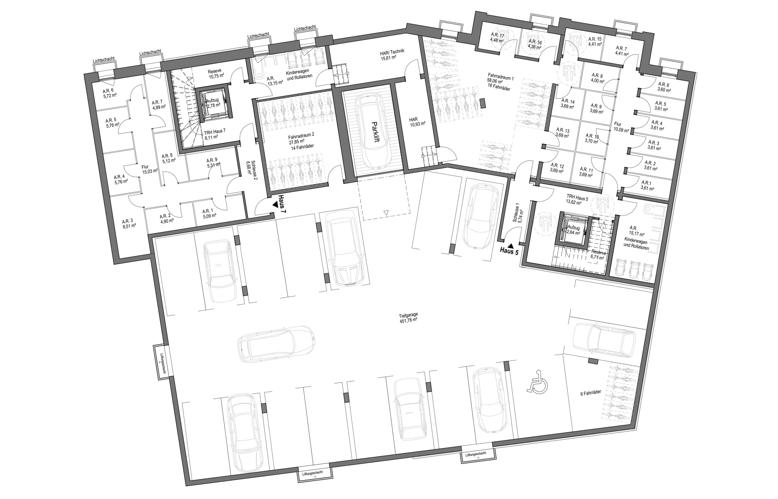
Beim LINDEN FORUM verteilen sich 26 barrierefreie Neubau-Eigentumswohnungen auf zwei individuelle Stadthäuser mit 5, bzw. 6 Etagen und 2 bis 5 Zimmern zwischen 65 m² und 167 m² Größe – überwiegend in Südausrichtung und direkt am nordwestlichen Zugang zum Lindener Markt gelegen. Zwischen den beiden Häusern (Nr.) 5 und (Nr.) 7 befindet sich die Einfahrt zum PKW-Lift in die Tiefgarage mit 17 Pkw- und 38 Fahrradstellplätzen sowie der Zugang zu Haus (Nr.) 5 und den als Garten angelegten Innenhof.
Verbindende Qualitätsmerkmale aller Wohnungen sind große Loggien, Balkonflächen oder Terrassen, Echtholzparkett, Fußbodenheizung und Kompaktstationen je Wohneinheit, dreifachverglaste, oft bodentiefe „französische“ Fenster, elektrische Außen-Rollläden, wahlweise ein Tiefgaragen-Stellplatz, baubegleitende Qualitätskontrollen durch den TÜV NORD, sowie die Wärmeversorgung durch energiesparende Luft-Wärmepumpen-Heiztechnik mit Pufferspeicher (GEG A+) und damit energetische Sicherheit für die Zukunft.

Durch das Klicken auf eines der obigen Vorschaubilder gelangen Sie in deren Galerie mit Vergrößerungsfunktion.
Gemeinsames Untergeschoss mit Tiefgarage
Im gemeinsamen Untergeschoss von Haus (Nr.) 5 und Haus (Nr.) 7 liegen neben den Kellerräumen für jede der insgesamt 26 Wohneinheiten gemeinsame Fahrrad-, Kinderwagen- oder Rollatoren-Abstellräume sowie die Schleusen zu den beiden Treppenhäusern links und rechts mit je einem Personenaufzug bis in die jeweils exklusiv zu erreichende Penthouse-Etage.
Aktuelles vom LINDEN FORUM
Lokale und überregionale Nachfrage

Eine der vielen Fragen, die sich für Interessenten an einem neuen Zuhause in einem Neubauprojekt…
Die Sicht der Stadtplanung

Eine der deutlichsten gestalterischen Eingaben der Stadt Hannover: Der gebaute Übergang von kaiserzeitlicher Pracht am…
Sommer in der Baulücke

Was wir im Sommer 2025 an Samstagen in der Davenstedter Straße 5 vorfinden, ist im…
Jetzt die passende Wohnung finden
Haus (Nr.) 5
17 barrierefreie Wohnungen von 69,7 m² bis 167 m² Größe in einem nach Süden terrassierten Baukörper, zwischen 4 Wohneinheiten und 1 Penthouse-Wohnung je Stockwerk, Personenaufzug aus der Tiefgarage bis direkt (und exklusiv) in die Penthouse-Wohnung
Erfahren Sie mehr zu einzelnen Wohnungen in Haus (Nr.) 5 und deren Verfügbarkeit
Haus (Nr.) 7
9 barrierefreie Wohnungen von 64,7 m² bis 128,4 m² Größe, zwischen 2 Wohneinheiten und 1 Penthouse-Wohnung je Stockwerk, Personenaufzug aus der Tiefgarage bis direkt (und exklusiv) in die Penthouse-Wohnung
Erfahren Sie mehr zu einzelnen Wohnungen in Haus (Nr.) 7 und deren Verfügbarkeit
Highlights aus der Bauleistungsbeschreibung
Projektpartner
Bauträger
Ihr Bauträger ist die Gencer Immobilien Verwaltungs GmbH, geführt von Unternehmer und Investor Yakup Gencer aus Ronnenberg, Region Hannover, der bereits mehrere Bauvorhaben in Steinhude, Bad Salzuflen, Hameln und Ronnenberg erfolgreich realisiert hat. Um immer wieder seinen eigenen hohen Qualitätsansprüchen gerecht zu werden, bezieht er namhafte regionale Handwerksbetriebe mit ein, die jeweils über große Expertise im Baugewerbe verfügen. Die Federführung dieses Bauvorhabens haben die hannoverschen Architekten FINK+TEAM architektur und planung übernommen. Der Alleinvertrieb liegt bei HERRMANN Immobilien.

Architektur
Für die Architekten FINK+TEAM architektur und planung hat jedes Projekt seine eigenen spezifischen Herausforderungen, wobei es auf die Qualität der Detaillösungen und ihre Überwachung während der Ausführung durch das beteiligte Handwerk ankommt.

Kaufmännische Projektbetreuung
TIMA Immobilien – Kaufmännische Projektbetreuung durch einen regionalen Bauträger: TIMA realisiert Wohnbauprojekte für Investoren und Eigennutzer sowie Ein- oder Mehrfamilienhäuser für private Bauherren. Innerhalb des Unternehmens arbeiten traditionelle bauhandwerkliche Kompetenz und das Fachwissen aus über 28 Jahren Erfolg im Immobilien- und Finanzwesen Hand in Hand zusammen.

Exklusiv-Vertrieb
Entwicklung und Vertrieb von Neubauprojekten sind mittlerweile zu einem zentralen Betätigungsfeld des Unternehmens geworden. Insgesamt arbeiten 11 Spezialisten und Fachkräfte bei und für HERRMANN Immobilien, neben Vertrieb und Projektentwicklung in den Bereichen Marketing, Werbung und Finanzierung an den beiden Standorten Springe und Wennigsen bei Hannover.












































