
Landleben mit Großstadt-Anbindung
Vom Bauerngarten zum barrierefreien Wohnprojekt
10 (+10) barrierefreie Eigentumswohnungen
zwischen 63 m² und 135 m² Größe
Auf dem Gelände eines ehemaligen, im Ortskern von Bennigsen gelegenen Dreiseithofs entsteht ein neues, harmonisch eingefügtes Wohnensemble. Zu dem Hof gehörten neben Stall und Scheune auch Weideflächen und ein großer Bauerngarten – diese Herkunft greift der Projektname ROSENHOF auf. Passend dazu trägt die rückwärtige Wohnstraße den Namen „Am Rosenbusch“.

10 (+10)
Wohnungen
ca. 63 -135
Quadratmeter Wohnfläche
8
PKW Stellplätze je Haus
2 - 4
Zimmer
ROSENHOF Bennigsen:
Landleben mit Großstadt-Anbindung
Alles, was es zum Leben braucht - aber auf kurzen Wegen!
Im 1. Bauabschnitt entstehen an der Hauptstraße 32-34 zwei moderne, barrierefreie Mehrfamilienhäuser mit jeweils 10 Eigentumswohnungen. Zu jedem Haus gehören 8 Pkw-Stellplätze sowie ein überdachter Fahrradstellplatz. In nachfolgenden Bauabschnitten werden mindestens drei weitere Häuser errichtet, sodass insgesamt ein kleines, in sich stimmiges und harmonisches Wohnensemble aus 5 Häusern entsteht.
Jetzt die passende Wohnung finden
Eckdaten und Verfügbarkeit auf einen Blick
| Whg | Zi. | Größe | Lage | KP | Status |
|---|---|---|---|---|---|
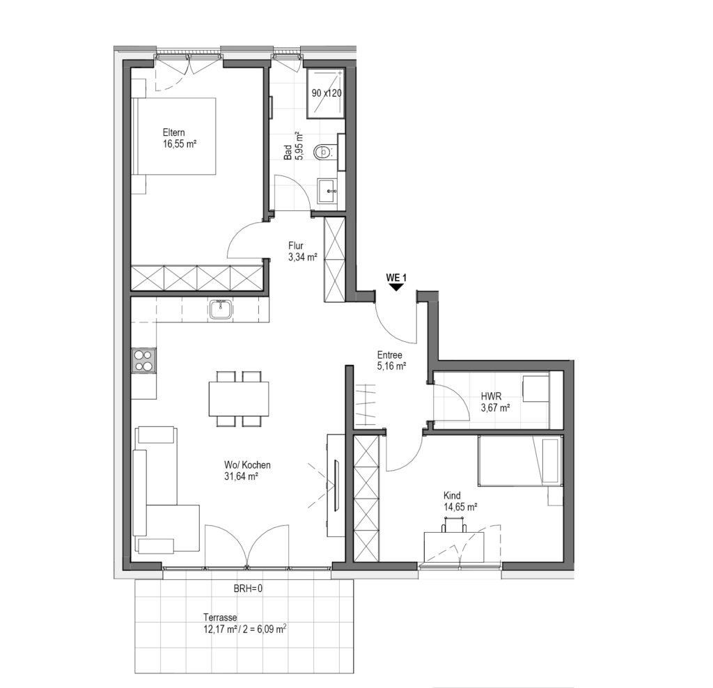
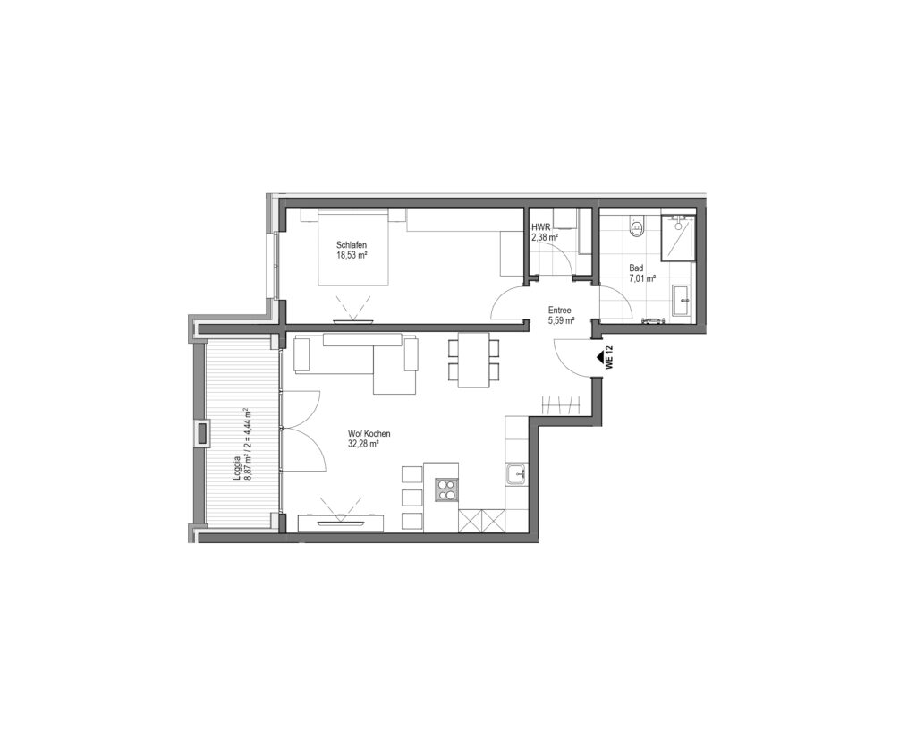
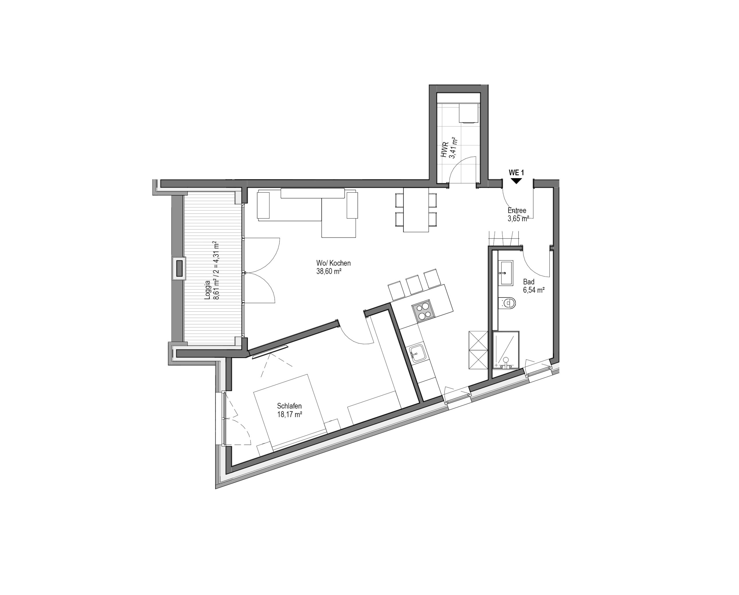
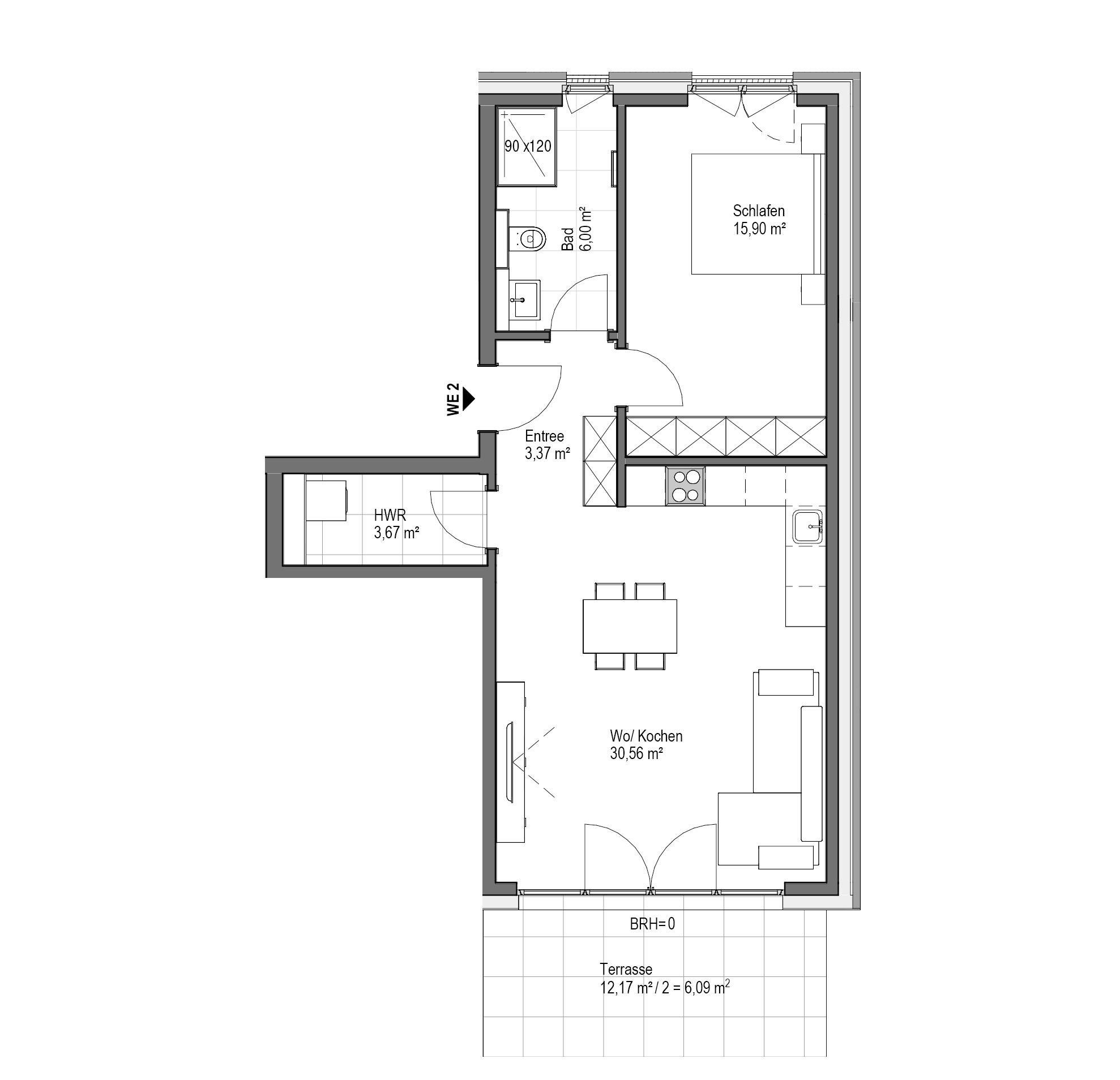
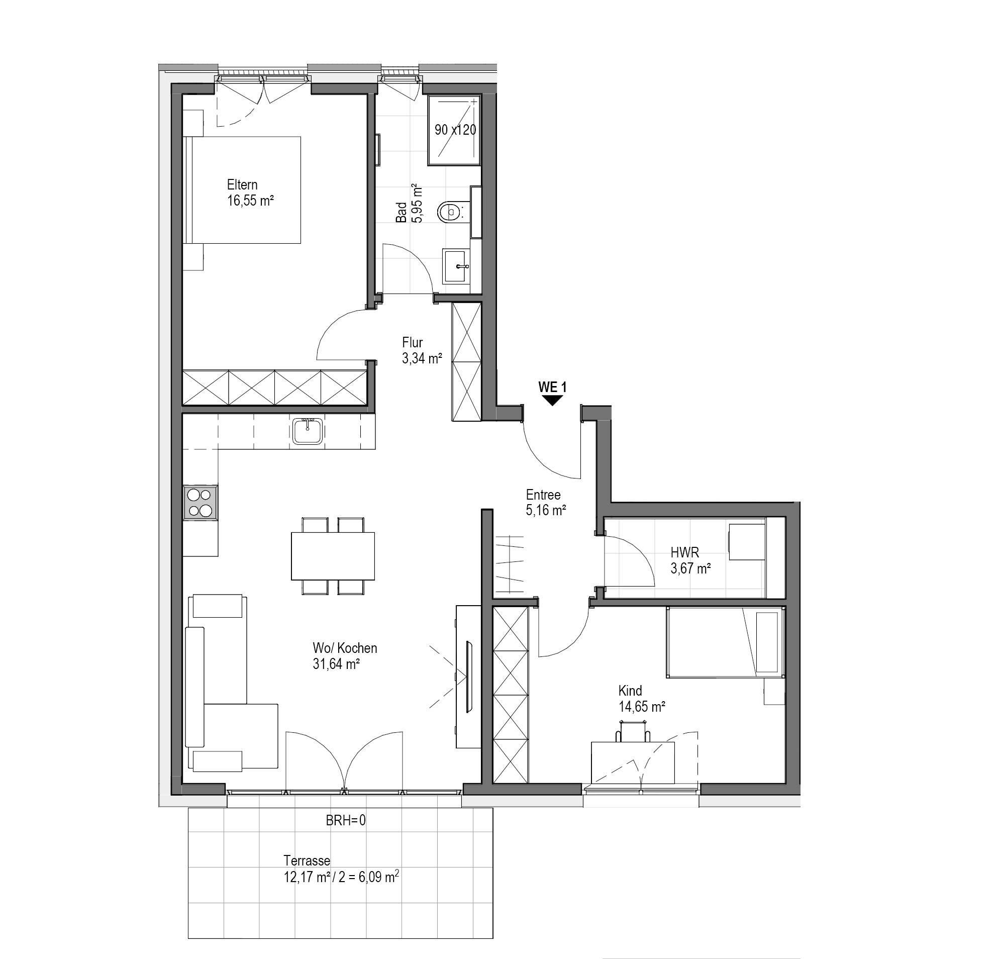
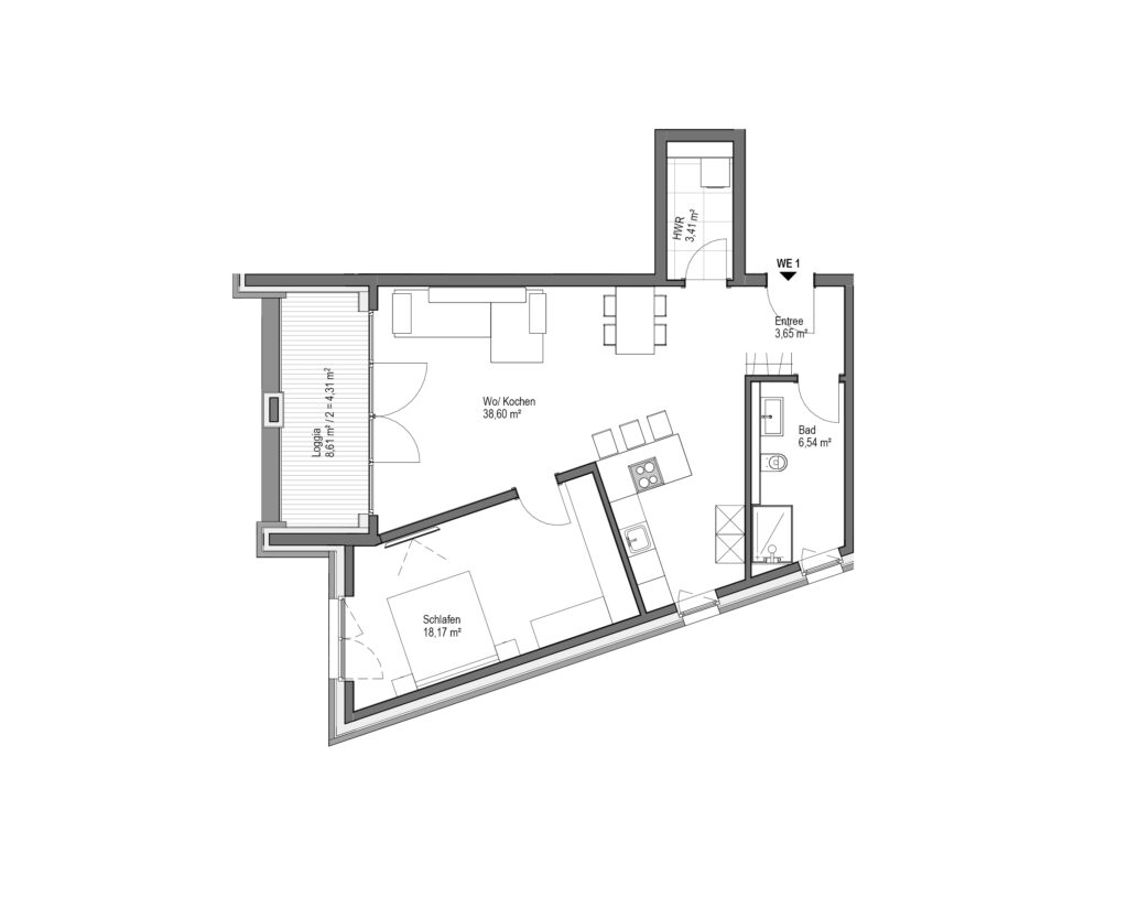
| WE 1 | 2 | 63,54 m² | EG links | 295.000 € | frei |
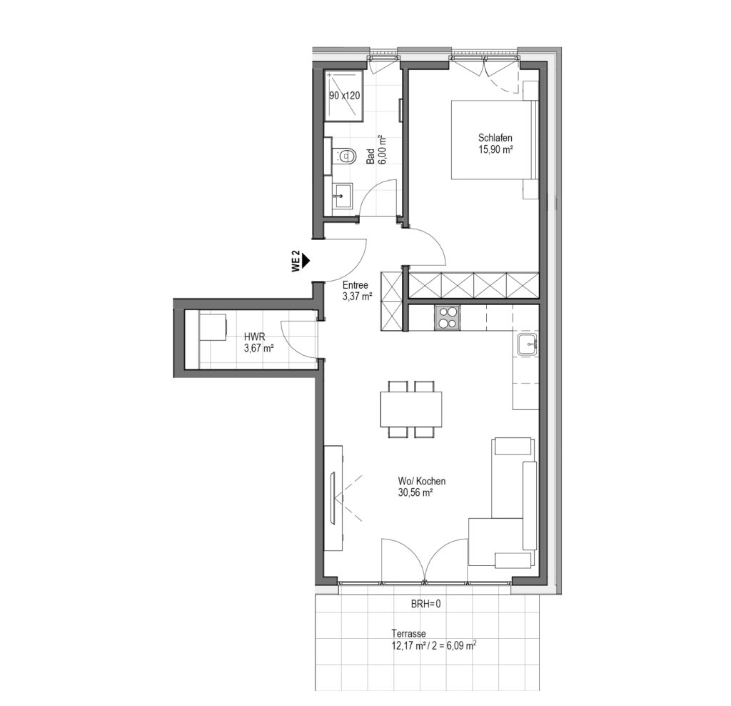
| WE 2 | 2 | 76,88 m² | EG Mitte links | 350.000 € | frei |
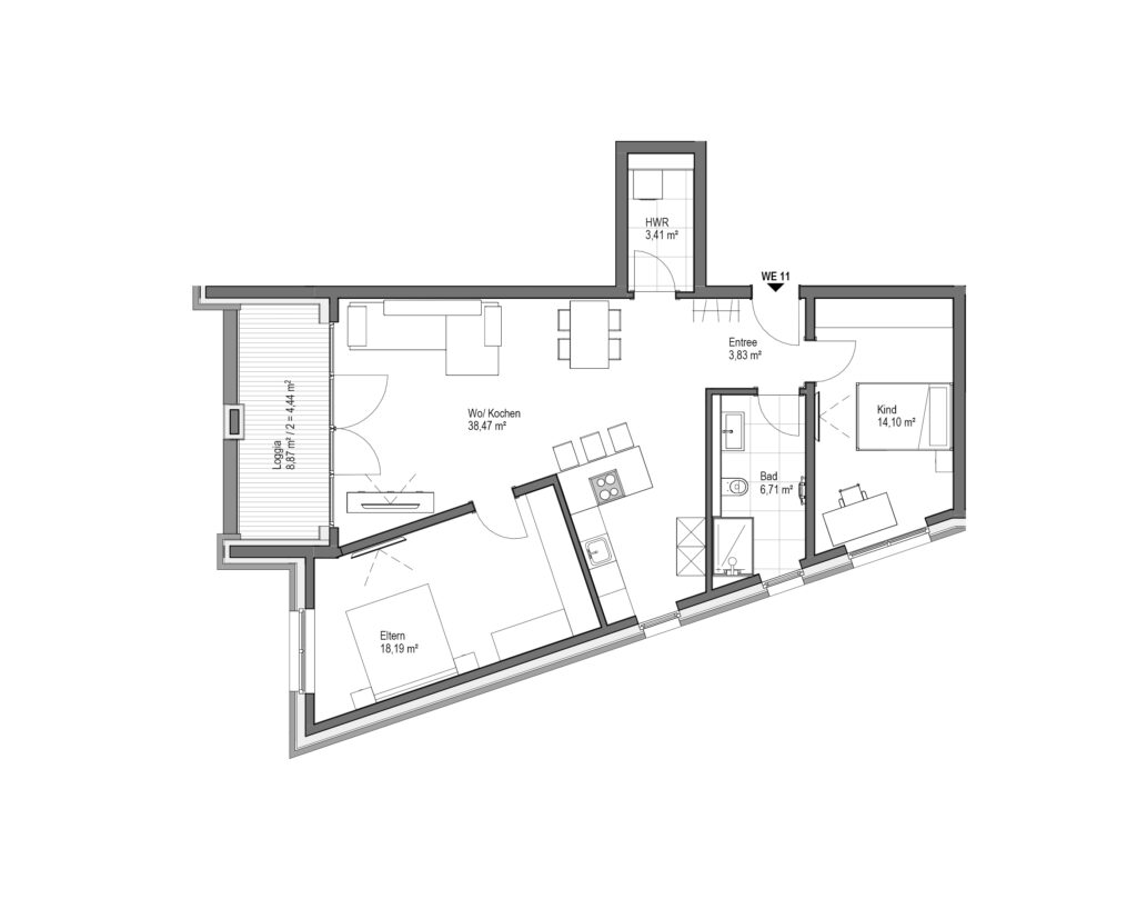
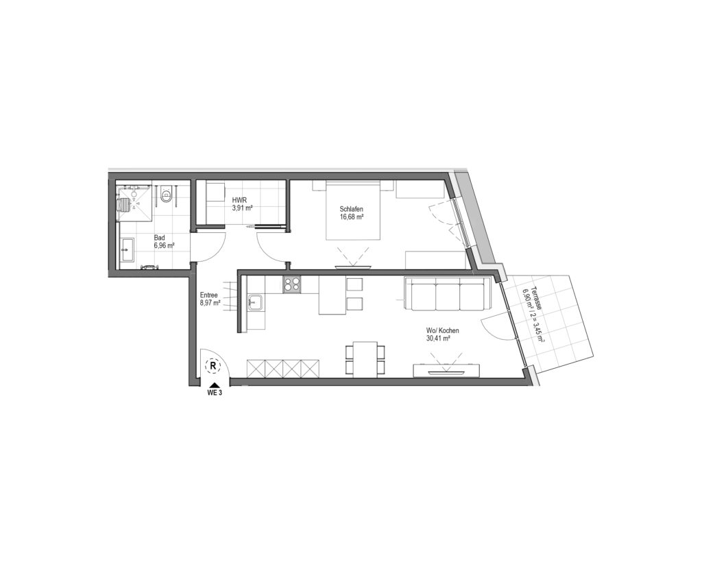
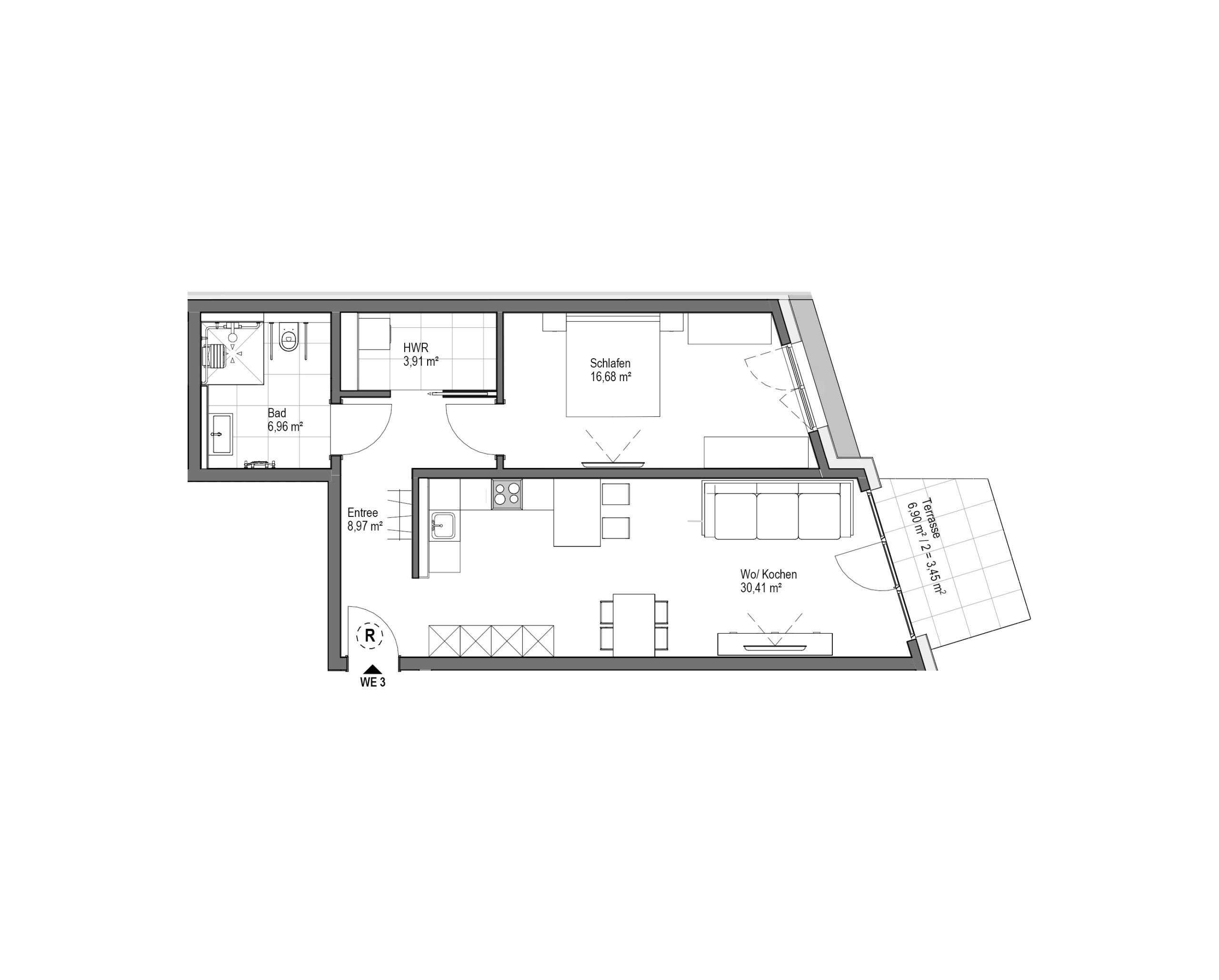
| WE 3 | 3 | 90,47 m² | EG Mitte rechts | 420.000 € | frei |
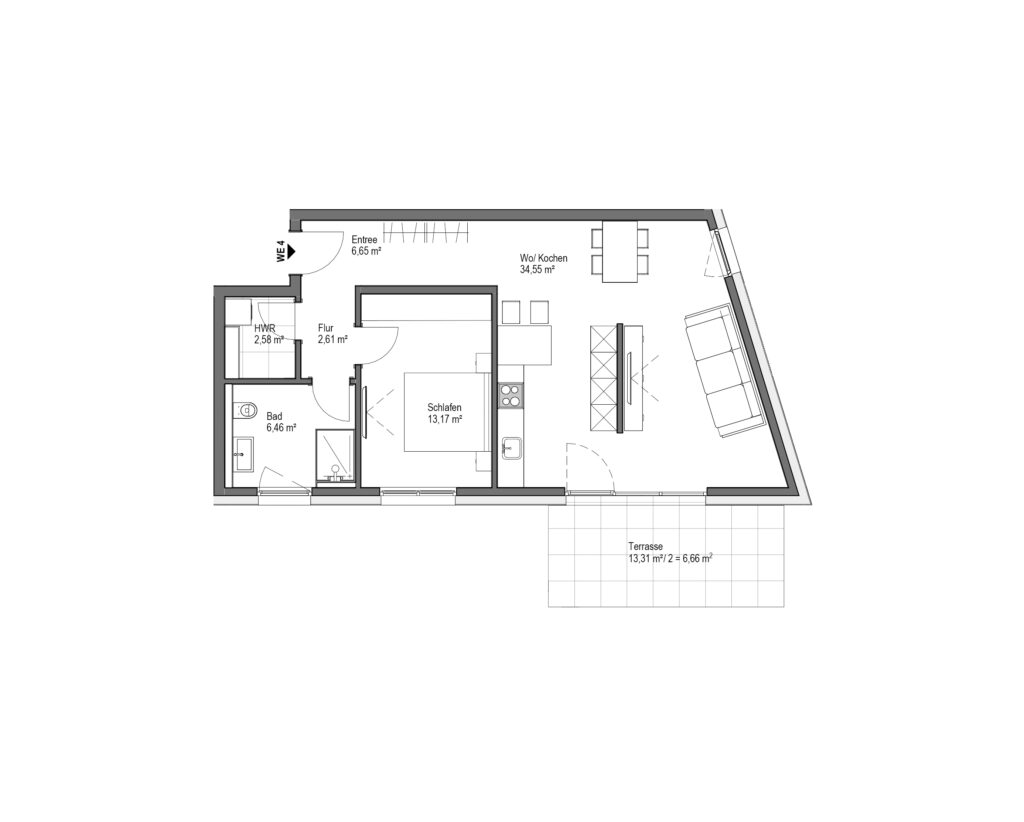
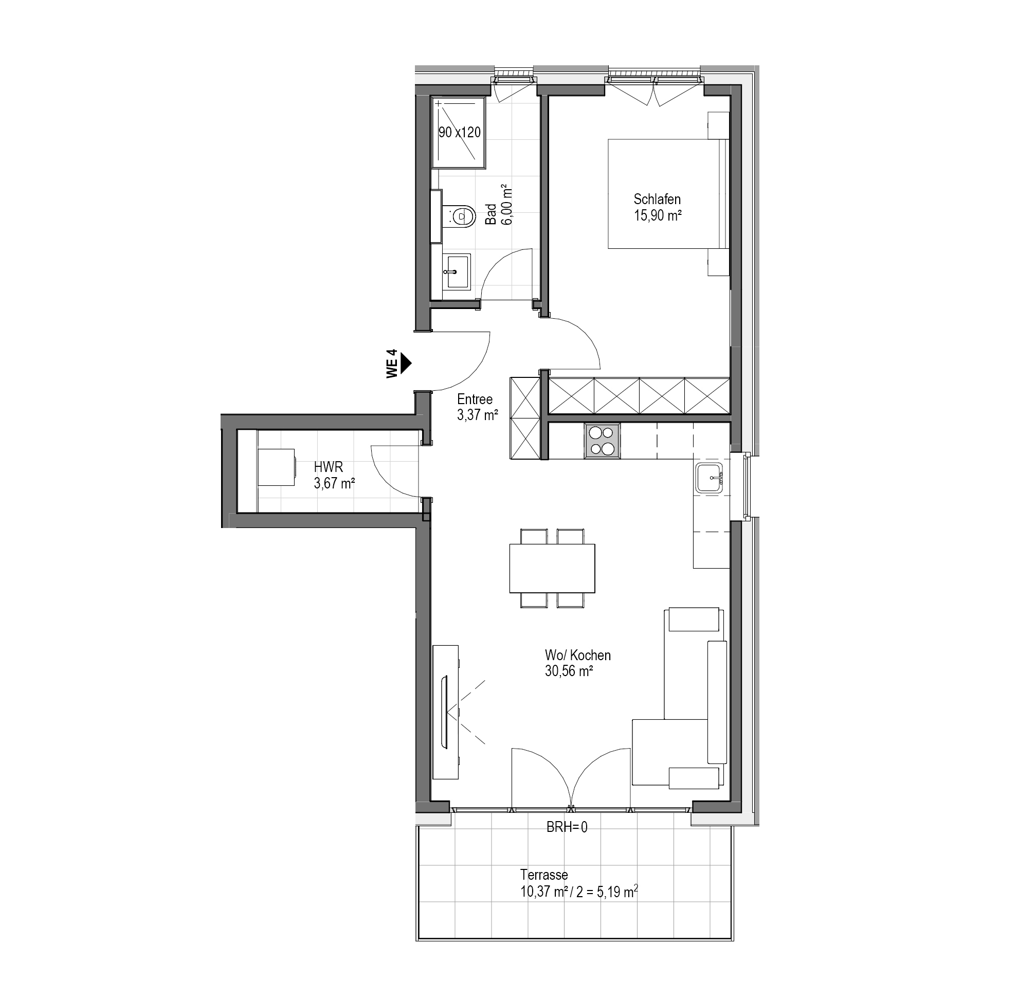
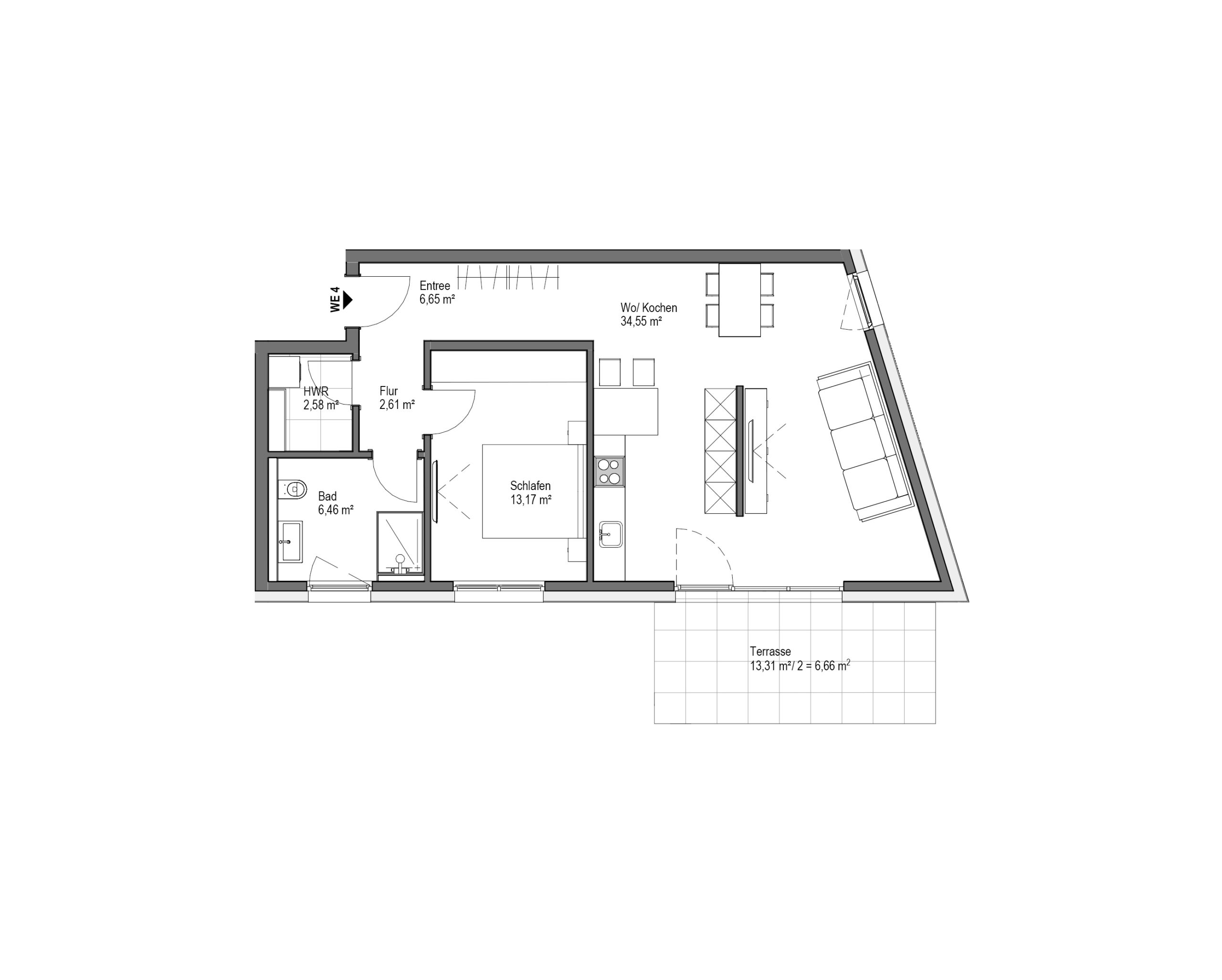
| WE 4 | 2 | 63,56 m² | EG rechts* | 299.000 € | frei |
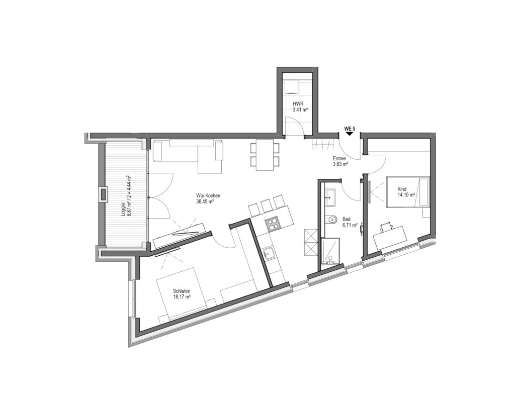
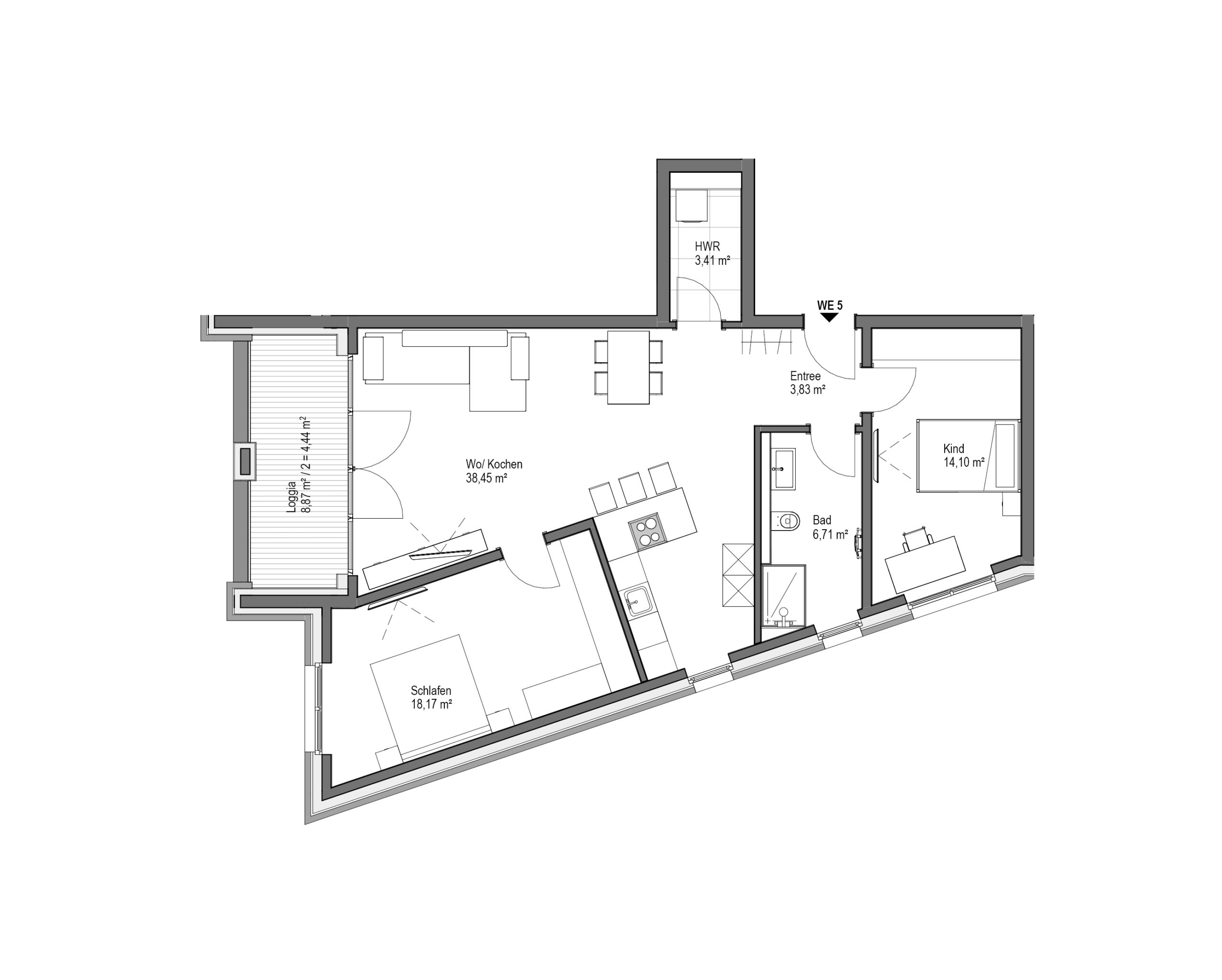
| WE 5 | 2 | 63,31 m² | OG links | 285.000 € | frei |
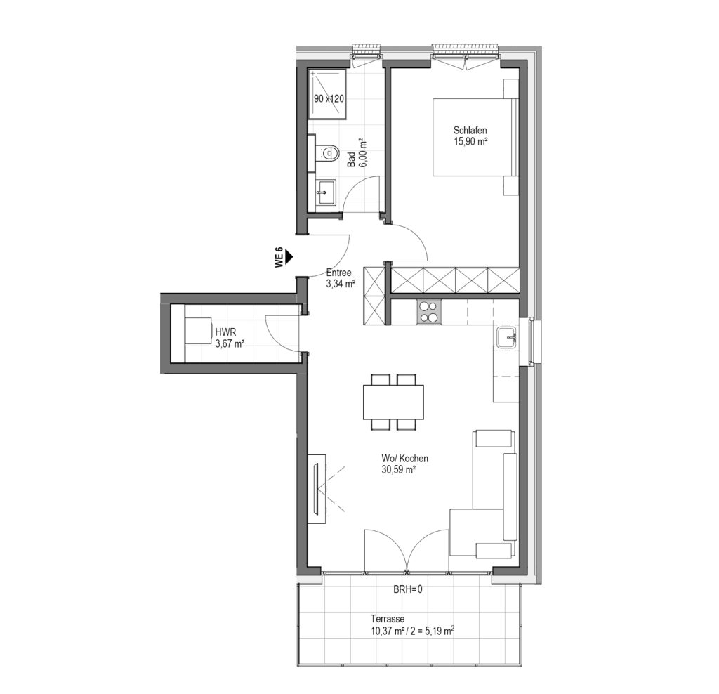
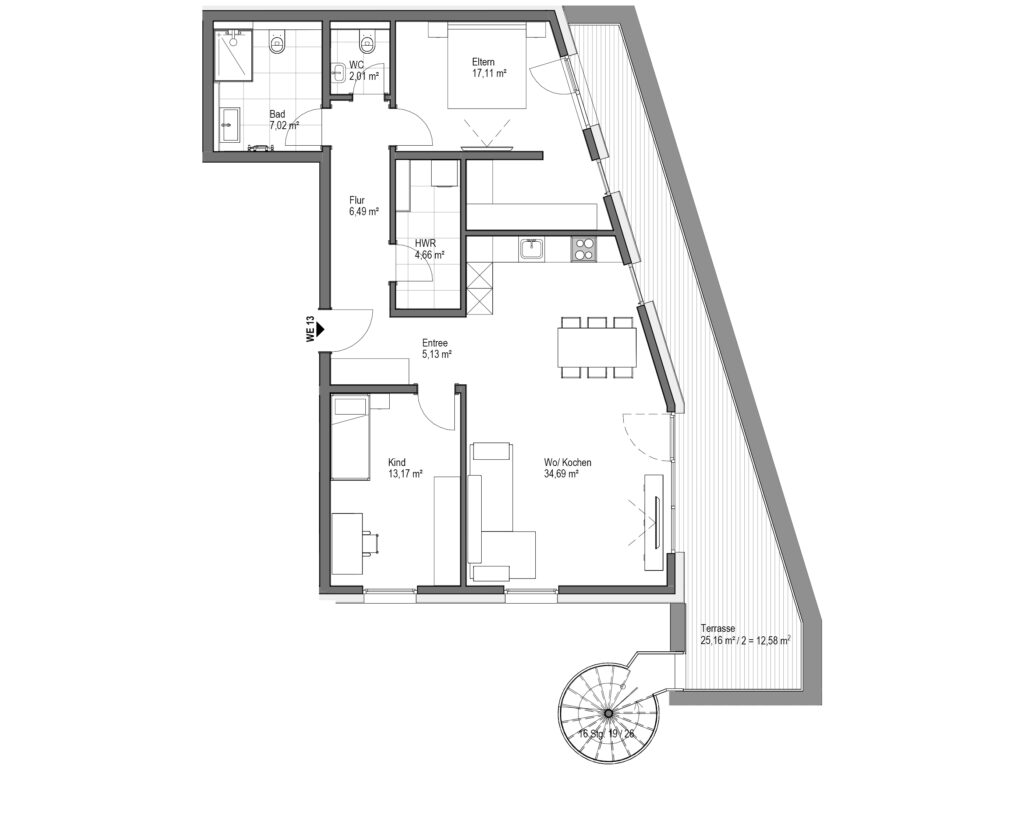
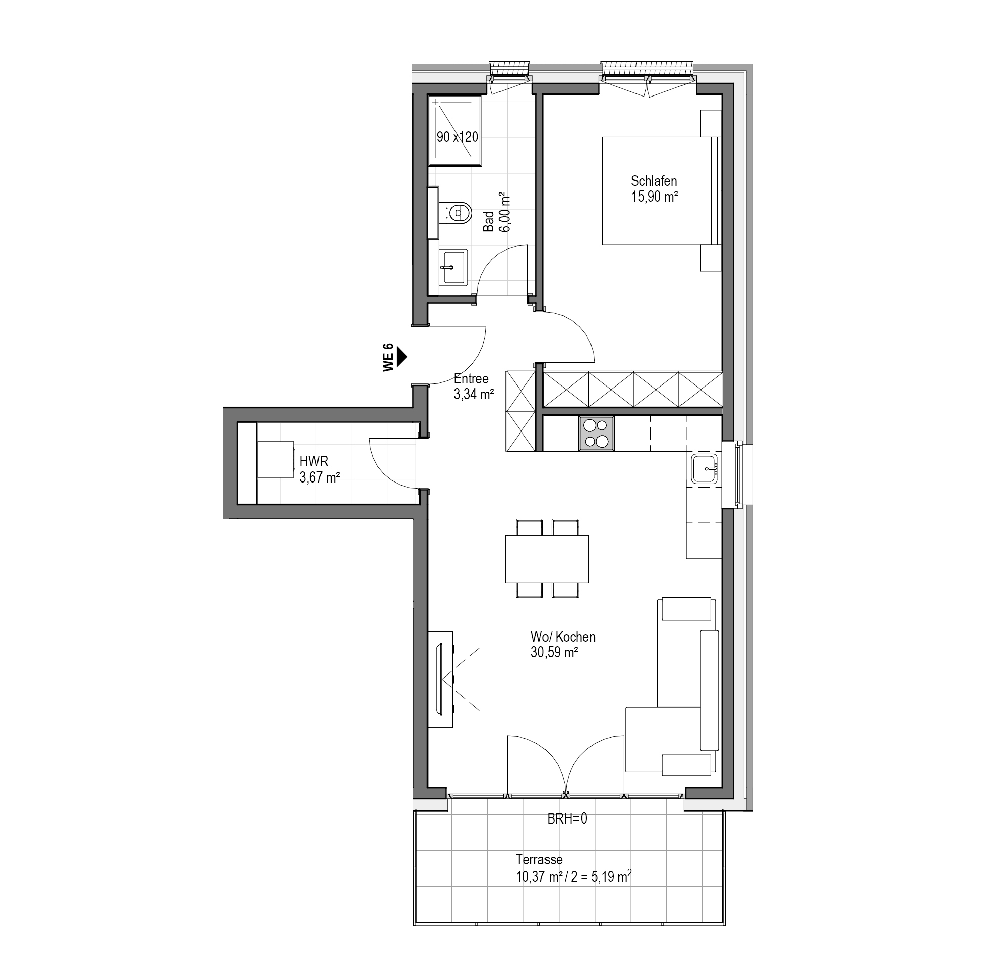
| WE 6 | 3 | 88,92 m² | OG Mitte links | 395.000 € | frei |
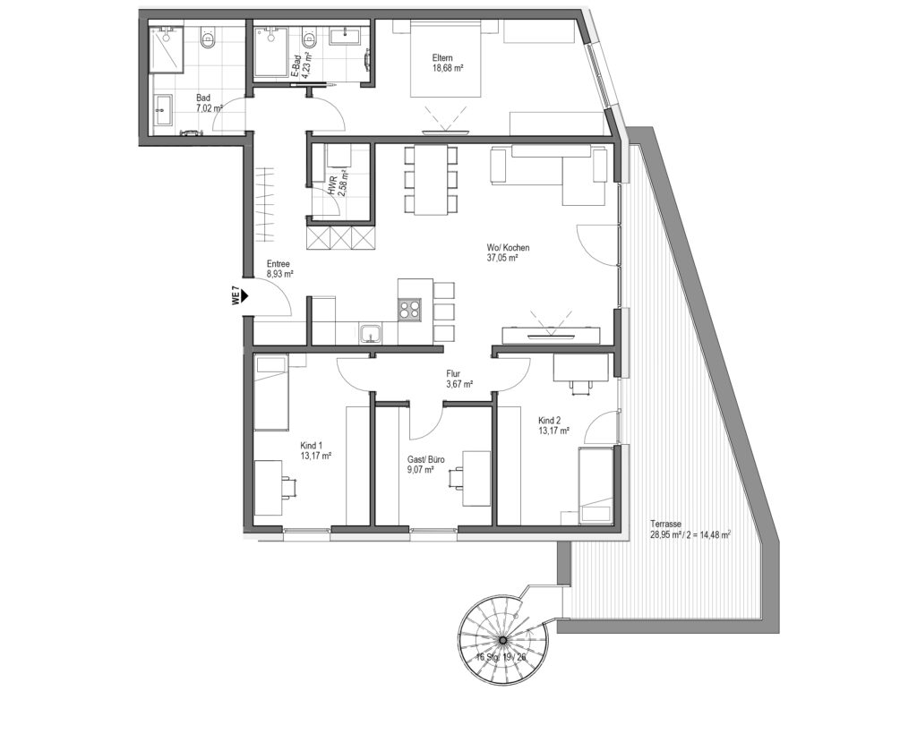
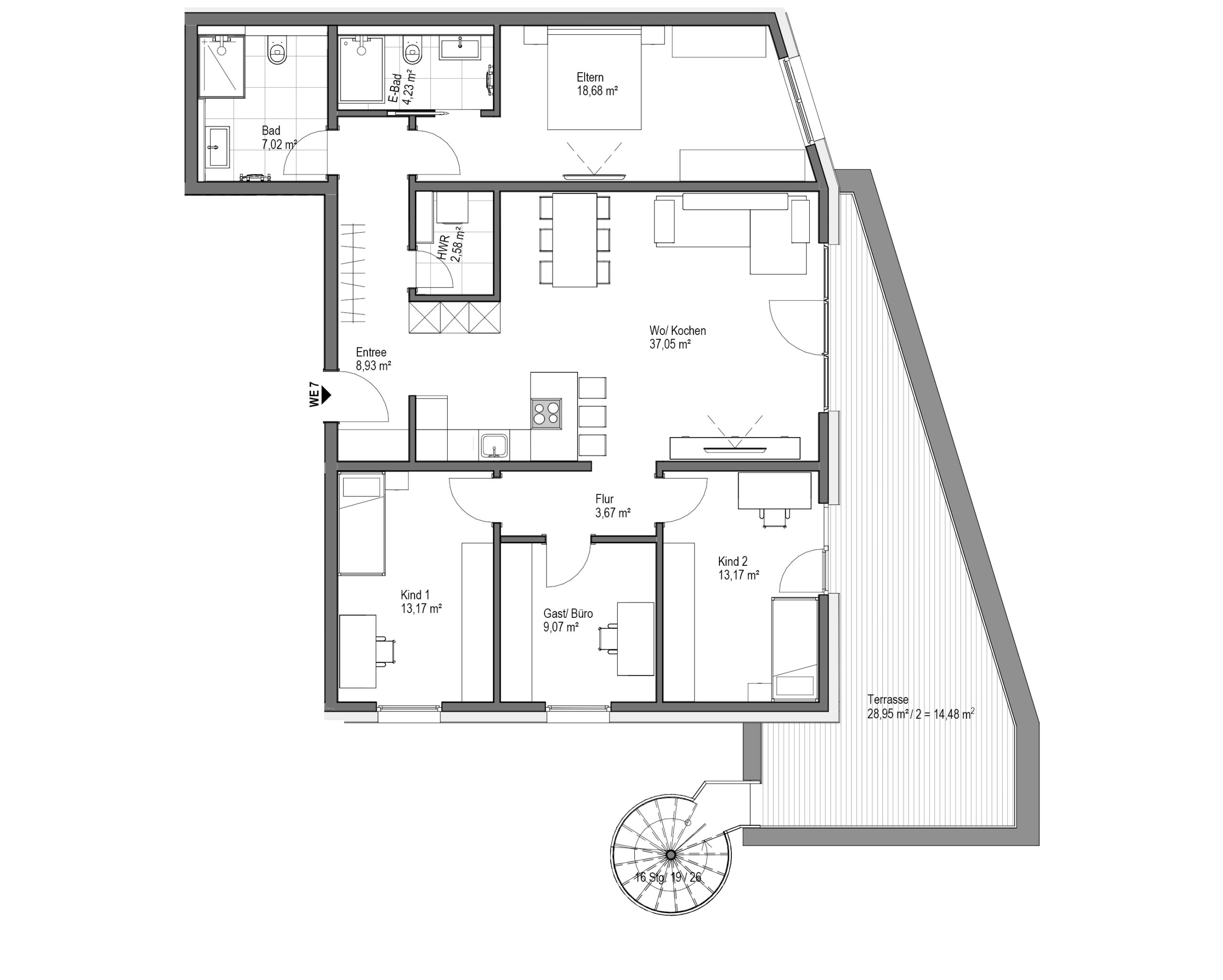
| WE 7 | 3 | 88,93 m² | OG Mitte rechts | 407.000 € | frei |
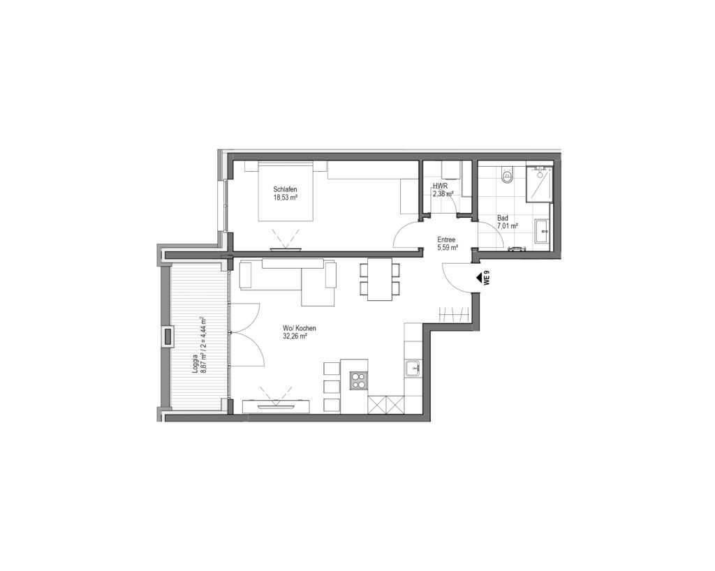
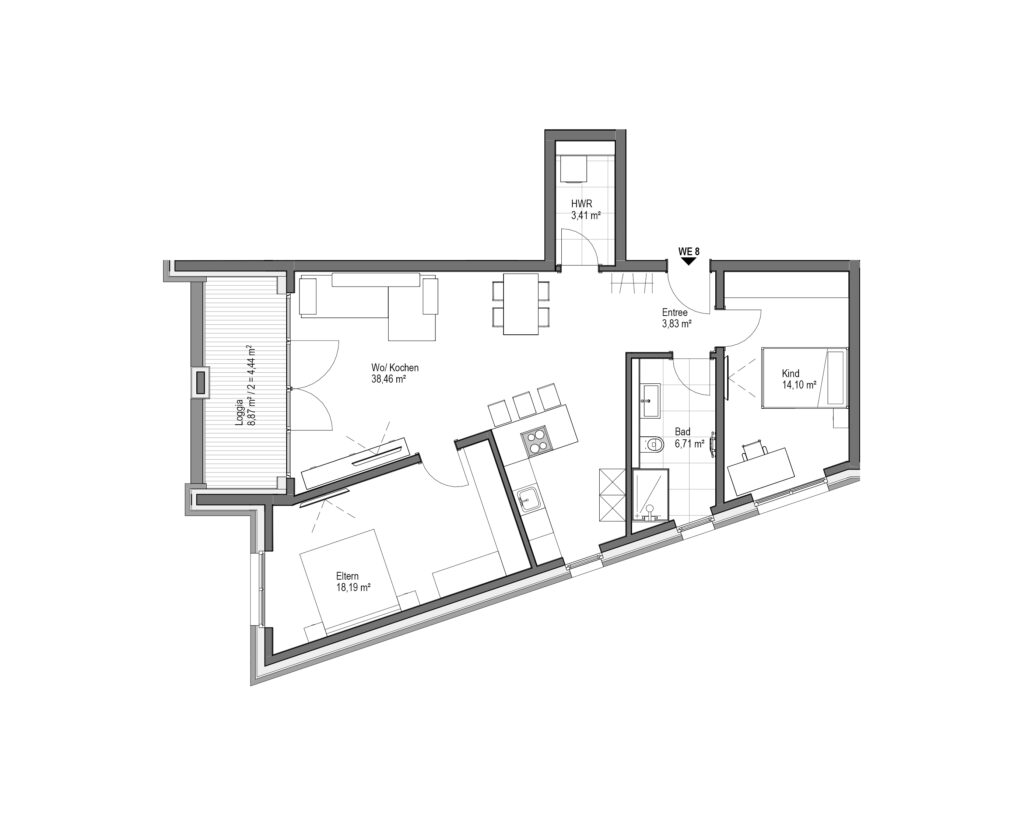
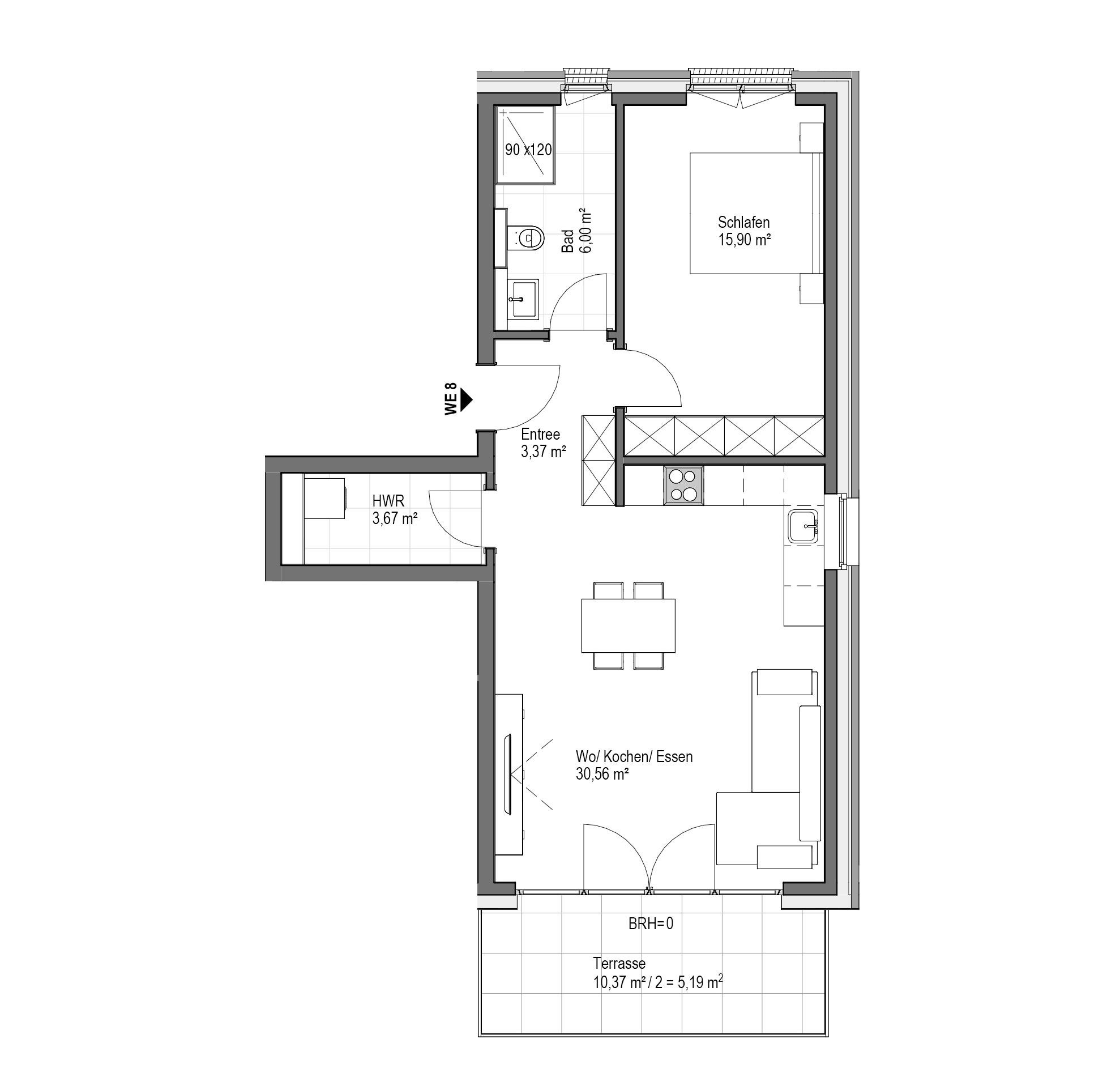
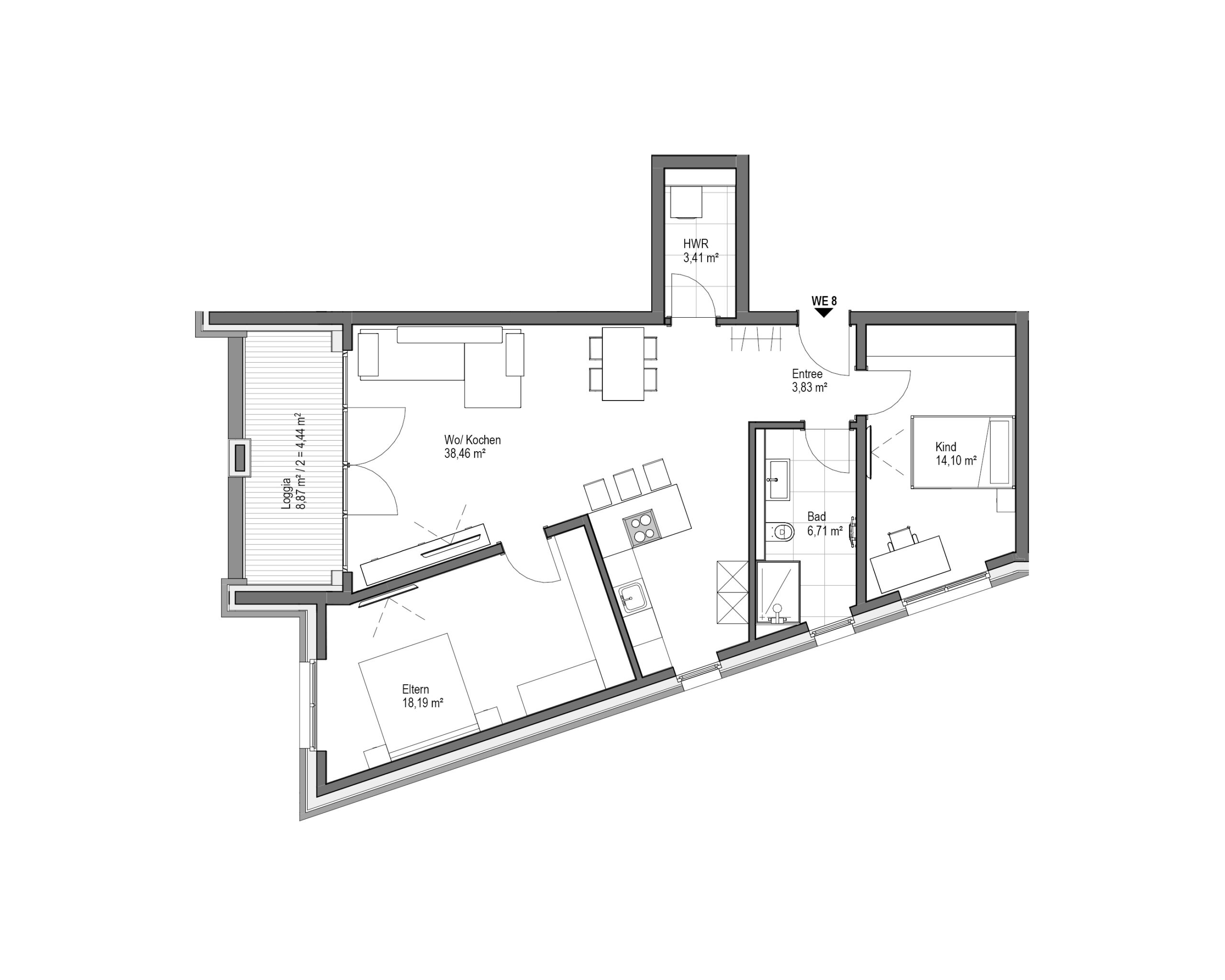
| WE 8 | 2 | 63,31 m² | OG rechts | 295.000 € | frei |
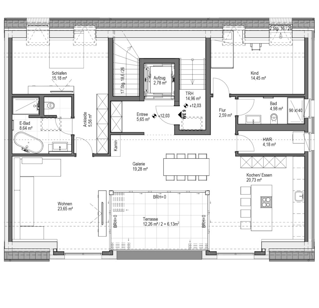
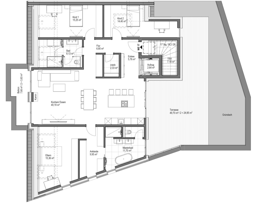
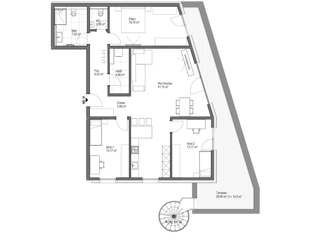
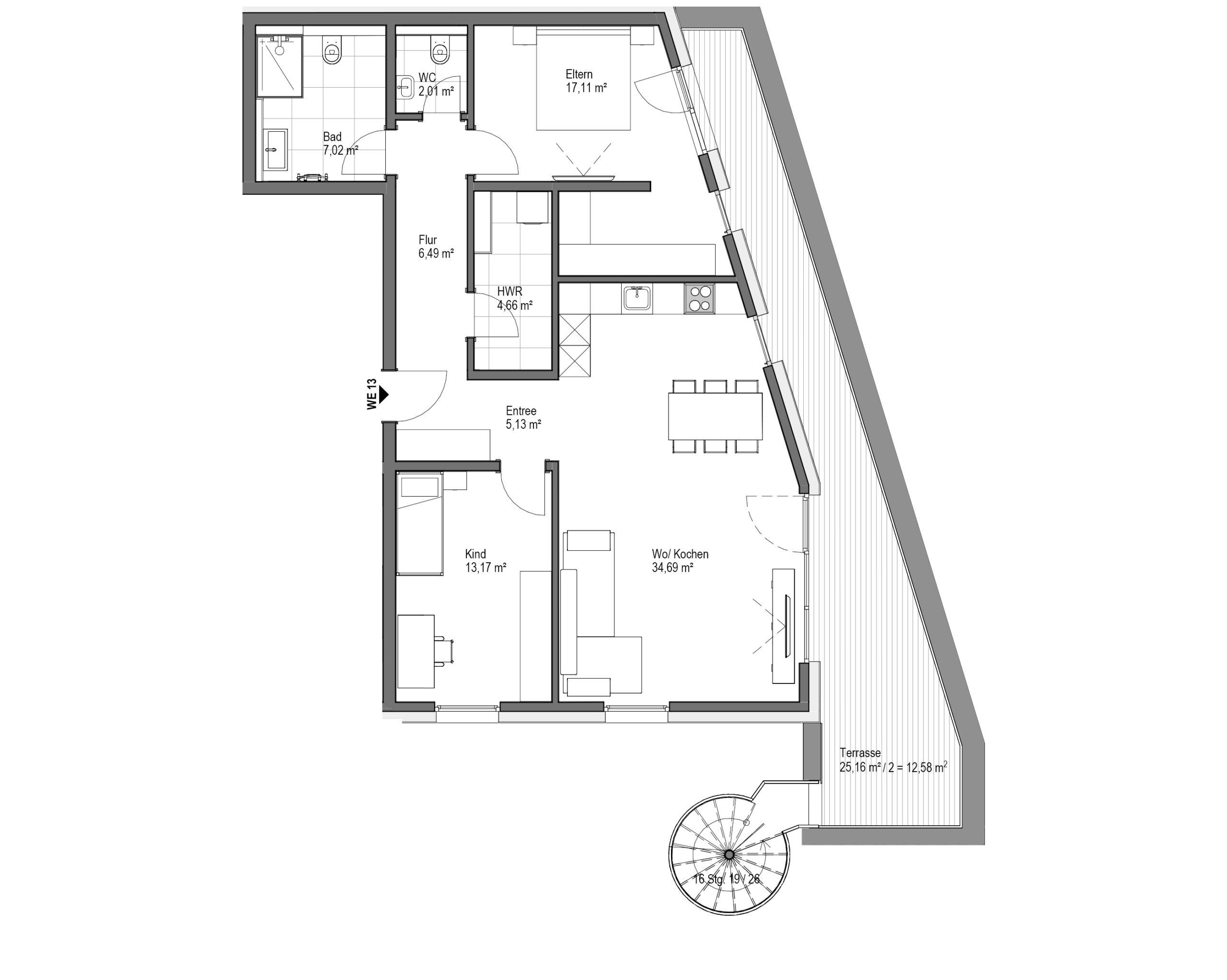
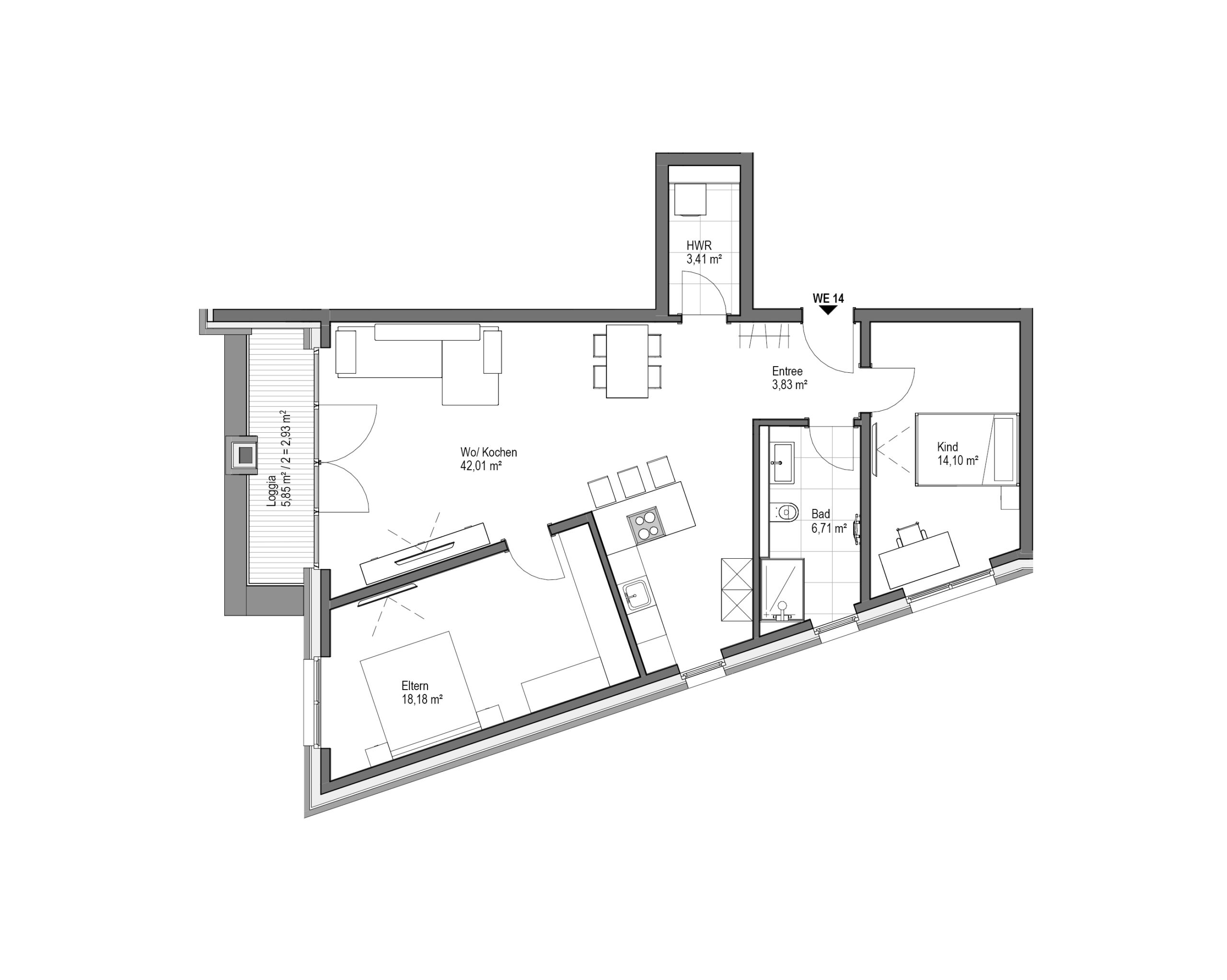
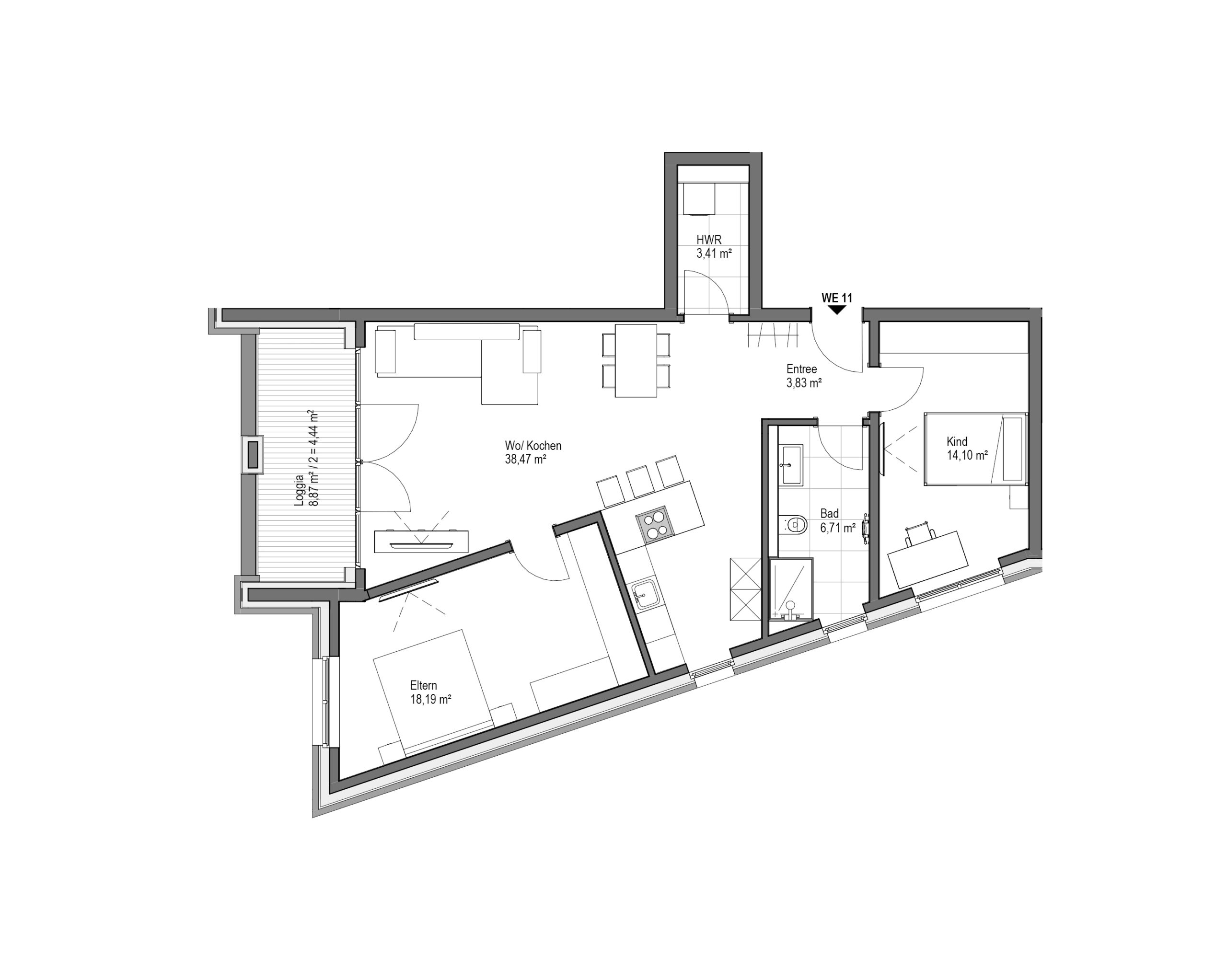
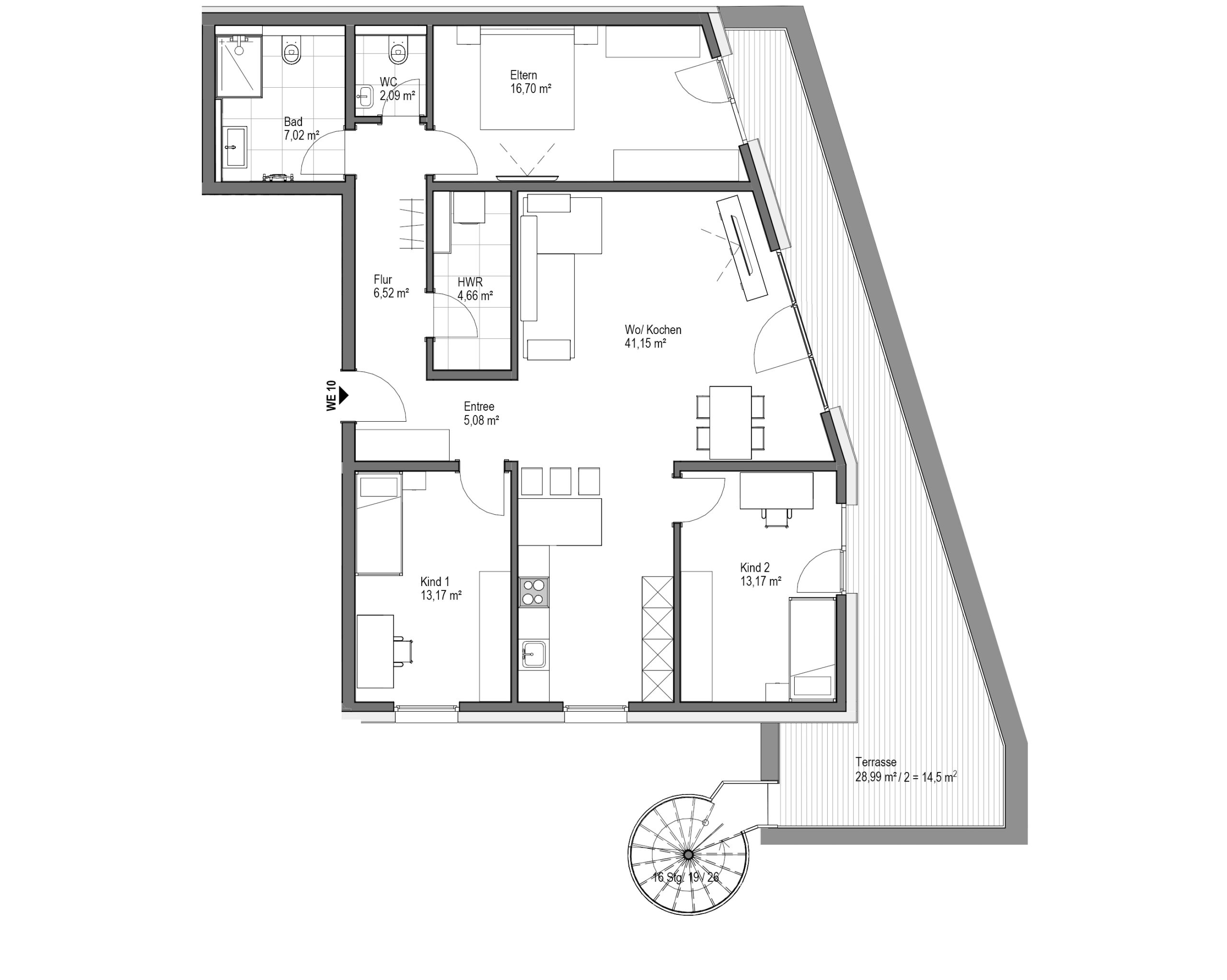
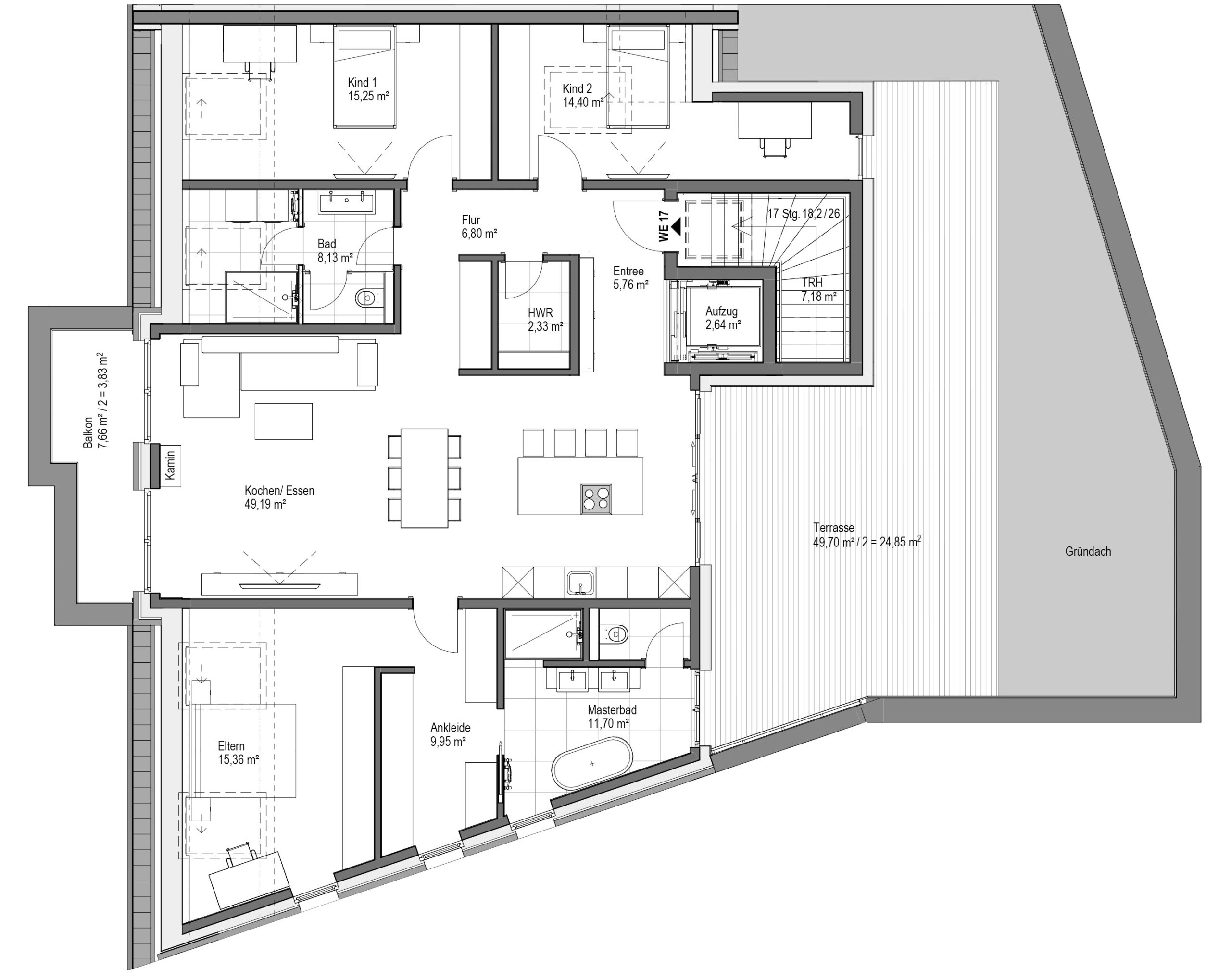
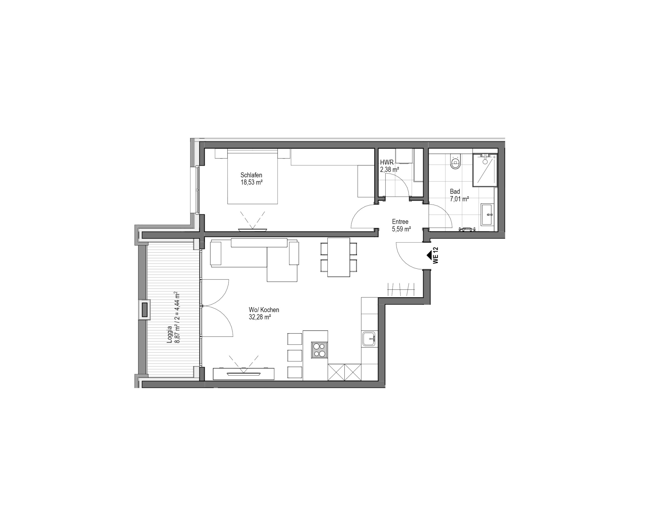
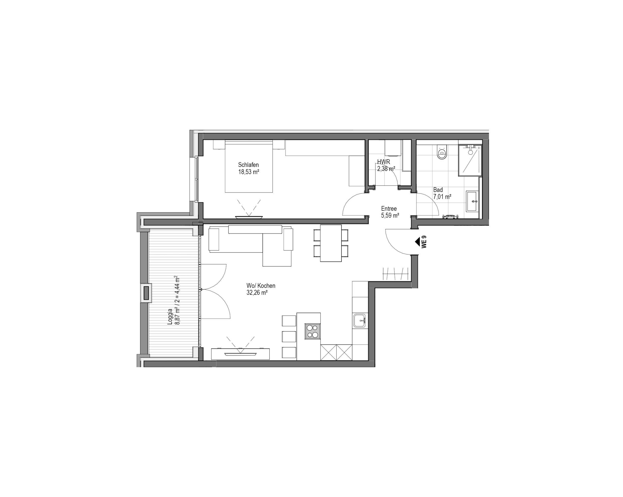
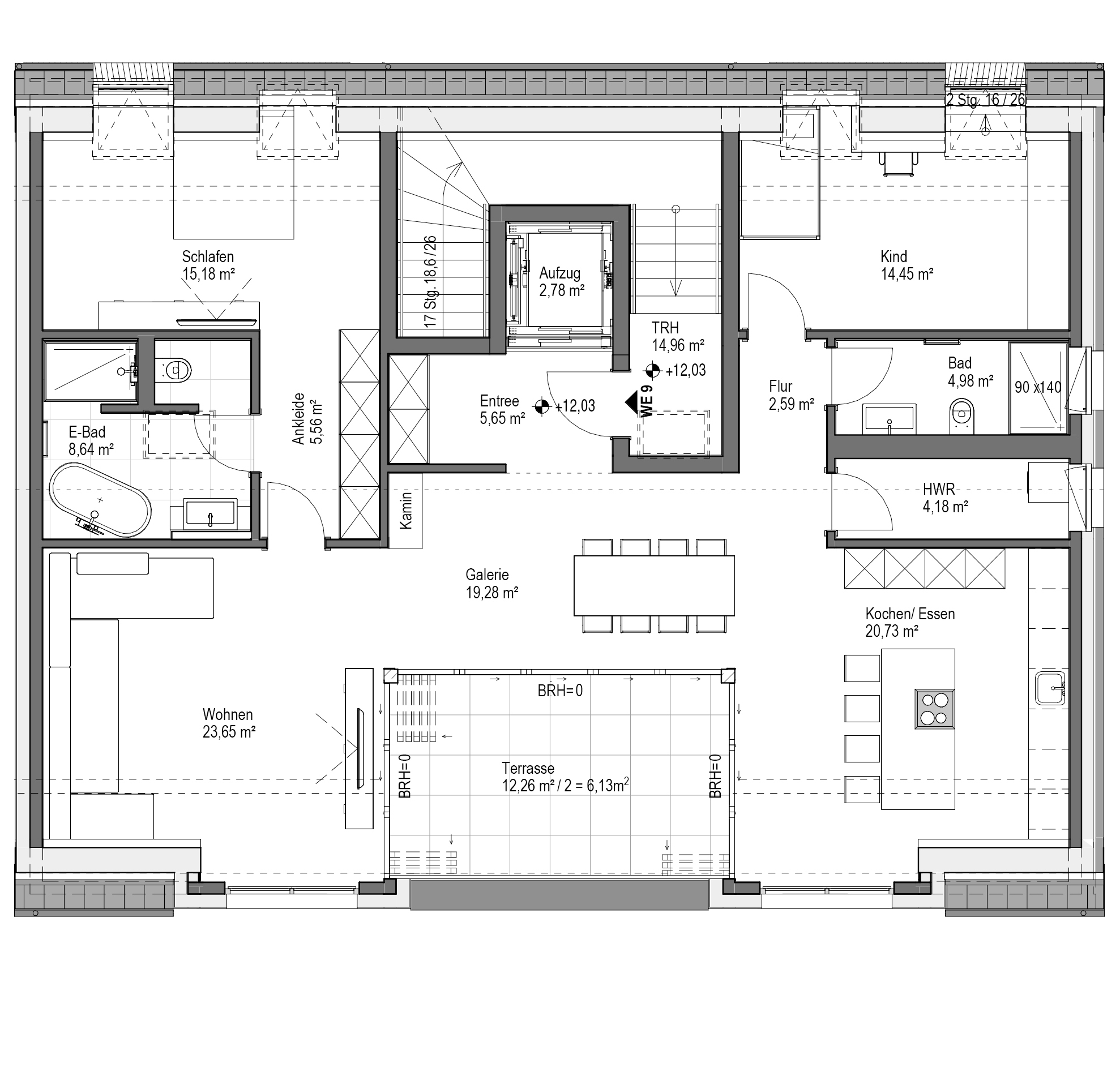
| WE 9 | 4 | 134,84 m² | DG rechts | 589.000 € | frei |
| WE 10 | 4 | 134,85 m² | DG links | 599.000 € | frei |
* Rollstuhlgerechte Wohnung
Die Kaufpreise verstehen sich exklusive Maklercourtage.
Für den Käufer fällt eine Courtage in Höhe von 3,57 % inkl. MwSt. auf den notariell beurkundeten Kaufpreis an.
Wir freuen uns auf Ihre Nachricht

Ihr Ansprechpartner
Lars Zwirner
Bitte hinterlassen Sie kurz Ihre Kontaktdaten – wir übersenden Ihnen umgehend das allgemeine Exposé zum ROSENHOF Bennigsen.

Ihr Ansprechpartner
Mustafa Wendland
Nennen Sie uns gerne Ihre Wünsche und Prioritäten zu diesem besonderen Bauvorhaben, damit wir Ihnen passgenaue Informationen zusammenstellen können – auf Wunsch auch mit einer kurzen Einordnung aus erster Hand.

























